Menu
Menu

Community Engagement

As we grow our spaces and built environments, it’s important to grow our communities alongside them.

Community Engagement
Community Engagement

We specialise in creating forums where community residents participate in the redevelopment of their area.

We like to get people talking about outcomes for their area.

We know how to get the ball rolling and collaborate with our audience.

We specialise in facilitating targeted group discussions and incorporate local ideas into findings reports and spatial assessment plans for emerging developments.

Services

Master Planning/Subdivision, Strategies and Frameworks

Urban Design

Urban Design

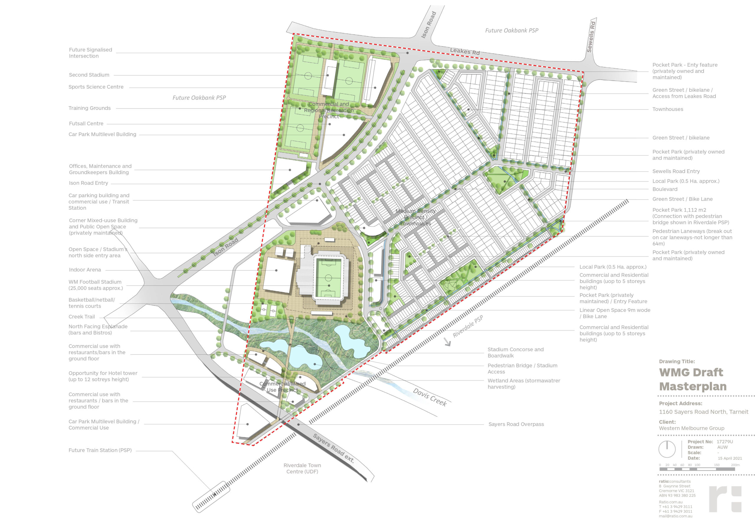
Our Urban Design team has experience preparing concept masterplans for greenfield, brownfield and infill new community developments.

We specialise in smaller-scale subdivisions, high-level strategies, and frameworks for townships and activity centres. We regularly work with professional project teams and understand the importance of effective and timely communication.

We understand the practical challenges of meeting civil engineering and road network requirements. Our team listens to our clients, identifies challenges and opportunities for each setting and applies our extensive multidisciplinary experience in designing sustainable master-planned communities.

Through our innovative design solutions, we respond not only to our client’s requirements but also to the changing needs of an emerging communities and markets. Our layouts balance the need to maximise yield with the necessity of delivering high-quality planning and design outcomes.

Movement and Place Assessments

Transport

Transport

We are proud to be part of projects that shape cities, neighbourhoods and places for people. Ratio recognises that streets perform multiple functions as both transport links and destinations in their own right.

Our interdisciplinary services across urban design, planning and transport have a unique ability to consider all aspects of movement and place assessments. Ratio’s movement and place team collaborate with government and community stakeholders to enhance the safety, accessibility and enjoyment of activity centres.

We create sustainable and comprehensive solutions to complex urban challenges.

Urban Design Statements

Urban Design

Urban Design

We prepare urban design statements to accompany a range of planning applications.

An urban design statement can assist to represent a site, its context and design influences, set out the design rationale for the project and discuss its merits with visual support.

This also allows for design issues to be anticipated at outset of the planning approval process.

8 Egan Street, Carnegie

Built Form Modelling

Urban Design

Urban Design

Built form modelling can test the capacity of the site and potential impacts, and demonstrate the effect of a proposal as part of an urban design statement or expert evidence report.

We use a range of 3D techniques to explore the form of buildings on a site and to place them within a built form context.

Visual Impact Assessments

Visualisation

Visualisation

Visual Impact Assessment (VIA) is a multi-step systematic process used to evaluate the potential visual impact of proposed built forms on their surrounding environment.

Our VIA services assist our clients in ensuring that proposed developments contribute positively to the urban fabric and maximise objectivity throughout the decision-making process.

Public Realm Analysis and Design

Urban Design

Urban Design

We undertake a range of public realm analysis and design exercises.

Our team adopt a people and place approach that ensures streets and public spaces are accessible, safe and attractive for all.

We are highly aware of the interactions between movement and place and frequently collaborate with our Transport team on streetscape studies that consider a full range of users and transport modes.

Planning Scheme Amendments

Planning

Planning

We're here to help bring projects to life, even if that means guiding you through the often-lengthy planning scheme amendment process.

Ratio has extensive experience with changing property zones and adjusting development controls for projects constrained by the existing planning scheme.

With our network of connections across local and state government, we're here to ensure that everyone works together for the good of your project.

Landscape Strategy including Masterplans, Visual Assessment & Reports

Landscape Architecture

Landscape Architecture

A detailed plan of the project site guides landscape management and informs project scale for stakeholders.